Populært

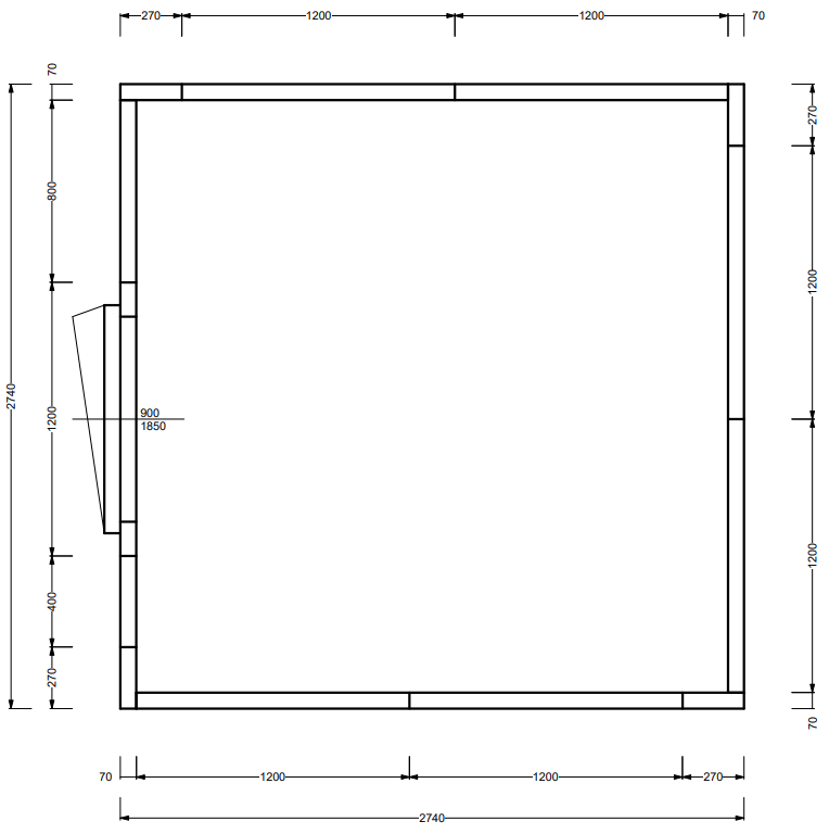
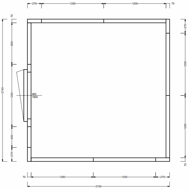
Kølerum uden gulv BASIC JKS lagerrum måler 2740x2740x2070mm med 90cm bred dør Eksl. Dørkontakt, Lys, Alarmer mv.

Varenummer: 2740x2740x2070(stock)-Supereko70
Beskrivelse

Vores BASIC kølerum er produceret i Italen og har en isoleringstykkelde på 70 mm. Døren er 90 cm bred, så du kan køre paller ind. Rummet leveres uden gulv så du slipper for en rampe.

Rummet leveres helt BASIC, dvs. uden evt. lys, alarmer mv.

Vores kompressor PGN1015-WP-R290 passer perfekt til dette rum og kræver ikke tilslutning af kølemontør 

Den kan du se her

Leasing, indretning eller et hjælp til et projekt?

KPA Group finder løsninger ….

Kpa Group er en koncern bestående af en lang række virksomheder der supporterer hele cateringbranchen på forskellig vis, faktisk er vi landets eneste der favner HELE branchen. Du har måske ikke brug for alle vores kompetencer lige nu, men du skal vide at vi hjælper hinanden og vi her er for dig. Nærmest uanset hvilken situation nu måtte stå i, skal vi nok finde en løsning til dig.

Kpa Projects ApS – Se Kpaprojects.dk 

Vores projektafdeling er dygtige til indretning, tegning og visualisering af store køkkener. Vi kan indtræde på alle niveauer i processen fra idé til planlægning og udførelse. Projektpartnerne skal være dine sparringspartnere gennem processen og sørge for deadline overholdes.

Østergaard Interiéur A/S – Se ostergaard-i.dk

Vores specialister indenfor indretning- og interiéur. Vi har stort lager af møbler, men råder også over egen produktion af bænke og barløsninger. Vi skræddersyer løsninger efter dine ønsker. Kom og bliv inspireret i det store showroom, der giver dig en idé om hvad vi kan hjælpe dig med.

Kpa Udlejning ApS – Se cateringudlejning.dk

Landets største udlejningsfirma til catering- og fødevarebranchen. Vi er massiv repræsenteret på alle danske festivaller og til stort set alle fødevaremesser. Vi råder over et kæmpe lager af udstyr som kan lejes på kort og længere basis.

Kpa Finans ApS – Se cateringfinans.dk

Vores eget finansieringsselskab. Vi hjælper med at gøre dine drømme til virkelighed og når du har fundet nogle gode løsninger hos vores søsterselskaber kan vi strikke en finansiering pakke sammen der tager udgangspunkt i jeres behov.

Profvask.dk

Vores afdeling for professional vask og tør. Som en af de eneste på det danske marked repræsenterer vi flere forskellige mærker indenfor vaskeri, hvilket giver os mulighed for at snakke åbent om fordele og ulemper ved de forskellige maskiner.

Sammen er vi Kpa Group og vi glæder os til at finde løsninger til dig. Enten som samlet team eller hver for sig. Valget er dit.

Salg til private? - Se Gastrobutikken.dk

Gastrobutikken.dk er vores søsterside, hvor du kan handle som privatkunde. Vi er en del af KPA koncernen og finder du ikke produktet på deres side, skriv da blot en mail eller ring, så skal finder vores søsterselskab en løsning til dig.

Dag-til-dag levering

Lagervarer leveres med 95% sandsynlighed allerede den første hverdag efter din bestilling, såfremt du har bestilt inden klokken 13.30.

Når du handler hos www.cateringinventar.dk kan du enten vælge at hente varen selv på vores lager i Ikast eller du kan få varen sendt med JJD transport eller GLS.  Såfremt du ønsker at få varen tilsendt, skal du huske at tjekke varen på pallen for eventuelle skader før du skriver under for modtagelsen. Du kan eventuelt bede om at få tilføjet “modtaget under forbehold”. Det betyder at du har taget forbehold for eventuelle skader du måtte have set på varen og som du mener skyldes transporten. Derefter får du varen udleveret og du kan ringe til os. Hvis du modtager en vare som er beskadiget under transporten uden forbehold eller uden at tjekke det først, så er det desværre dit ansvar som kunde og vi kan ikke gøre noget, da vi ikke kan kræve erstatning fra fragtmanden.

1 på lager

Tilkøb til produktet

22.998,00 DKK ex. moms

(28.747,50 DKK inkl. moms)
På eget lager ➞ 1-2 hverdages levering

Du kunne også være interesseret i…

+40 mio. kr. varer på lager

Vi leverer hurtigt fra EGET lager i DK

+1 mio. kr reservedele på lager i DK

og 1,5 mio. reservedele indenfor 48 timer

Ring på tlf. 20280274

Send en mail til [email protected]

Få et tilbud på din gamle køkkenmaskine

Mange køkkenmaskiner kan få nyt liv. Vi tilbagekøber hvert år mange maskiner af alle fabrikater, som vi renoverer og sælger igen. Få derfor en vurdering af din gamle maskine.

Finansiering

Ønsker du at få dine varer finansieret har vi både eget finansieringsselskab samt eksterne samarbejdspartnere. Du findes vores beregner og ansøgningsskema her:

Beregn og ansøg her
Kundetilfredshed Kundetilfredshed - 5 stjener
“Altid flinke og hjælpsom”
Georg 5 stjerner
“Altid søde, hjælpsomme og kompetente !”
Læse antik & retro 5 stjerner
“Anette var rigtig sød, venlig og imødekommende kommende. Fik en fejl levering og fik løst det i løbet af to sekunder. God arbejde og god weekend”
Michael 5 stjerner
“Bestilte kl.13 og havde tingene dagen efter kl.10. God service ☺”
Heidi Buch Jensen 5 stjerner
“De ved rigtig meget om møbler”
Kris 5 stjerner
“Det var en meget behagelig samtale.”
Käthe 5 stjerner
“Ekspert i hvidevarer “
Kris 5 stjerner
“Er blevet mødt at hjælpsomme og utrolig søde medarbejdere”
Tina 5 stjerner
“Fantastisk service. De ligger sig virkelig i selen for at give en god oplevelse. Jeg fik leveret en stor ovn til Malmø, hvor de normalt ikke har levering direkte, uden problemer. Jeg kan i høj grad anbefale Gastrobutikken – som både på priser og service er noget ud over det sædvanlige.”
Peter Holm 5 stjerner
“Fedt sted for den lille mand der gerne vil købe lidt af det de proff bruger søde og hjælpsomme ansatte”
Henrik Hauge 5 stjerner
“Fin fyr, der løste opgaven”
Marlu 5 stjerner
“Første gang jeg har handlet her,men helt sikkert ikke sidste gang,Go service og en super flink sælger i røret Kan klart anbefale at handle her”
Ole 5 stjerner
“Glade gutter svarer meget klart og for gjort det arb, de lover med bravør”
Isken 5 stjerner
“God faglig og personlig betjening.”
Kenneth Lynge 5 stjerner
“God hjælp fra service afd”
Benny 5 stjerner
“God kundebetjening og der blev svaret høfligt på mine spørgsmål.”
Kaj 5 stjerner
“God snak med Keld Han kunne svare på hvad jeg havde spørgsmål til “
Jeanette 5 stjerner
“Har købt mange maskiner og fået god hjælp når der har været problemer. Gode priser, mm.”
Patricia 5 stjerner
“Hjemmeside nem og hurtig at overskue samt hurtig betjening”
Kai Hou 5 stjerner
“Hurtig køb og hurtig levering ! Ikke så meget pjat “
Helle 5 stjerner
“Hurtig levering. :-)”
Birgitte Andersen 5 stjerner
“Hurtig og god service”
Build consult Ivs 5 stjerner
“Hvis I giver mig links til alle steder, hvor jeg kan rose jer til skyerne, så skal jeg med fornøjelse skrive niget”
Karl 5 stjerner
“Jeg blev ikke presset til noget, men fik nogle seriøse svar på mine spørgsmål. Jeg vender tilbage”
Arden selskabslokaler 5 stjerner
“Jeg fik svar på mine spørgsmål, og der var god service og tålmodighed.”
Adem 5 stjerner
“Jeg har brugt jer før og altid en god service!”
Golfcafeen 5 stjerner
“Kom hurtigt og er præcis det jeg bestilte. Pakket forsvarligt”
Ani Hof 5 stjerner
“kompetente folk”
Frank 5 stjerner
“Lynhurtigt og proff hjælp”
Christina 5 stjerner
“Mega ærlig og dygtig … har talt med 10 forskellige forhandler men ingen gav mig den samme tryghed som jer”
Lida 5 stjerner
“Meget flink service kan varmt anbefales”
Ole 5 stjerner
“Meget tilfreds. Utrolig venlig og hjælpsom betjening.”
Steffen 5 stjerner
“Meget venlig og personlig betjening. Det var en god oplevelse.”
Lone 5 stjerner
“Meget venlig og i møde kommende.”
Kirsten 5 stjerner
“Professionel og hurtig modtagelse af de leverede varer. Nice samarbejde”
Darut 5 stjerner
“Rigtig flot forretning og kanon god service.”
Tommy Bengtson 5 stjerner
“She was nice to talk to and I got the information I needed “
Christopher 5 stjerner
“Sød venlig betjening. Meget hjælpsom”
Charlotte 5 stjerner
“Sødt og hjælpsom personale og ok priser”
Bendt Jessen 5 stjerner
“Stort udvalg. God service. Fornuftige priser.”
Bent Graakjær 5 stjerner
“Super at handle med, hurtig lev. God service.”
Lajla 5 stjerner
“Super dejlig service af Rasmus. Kanon med en medarbejder der ved hvad han snakker om og kan vejlede os kunder”
Anonym 5 stjerner
“Super god service og oplysninger som vi kan bruge til noget. For klart vores anbefalinger.”
anonym 5 stjerner
“Super service”
Brian Nielsen 5 stjerner
“Telefon kontakt god! Men betjeningen i butikken var til 13 med pil op. En sjælden positiv fantastisk oplevelse, som jeg sent vil glemme! Kommer helt sikkert igen.”
Svend 5 stjerner
“Tjekker lige varer på lager med det samme “
Laila 5 stjerner
“Venlig – imødekommende – hjælpsom – super god service “
Kirtha 5 stjerner
“Virkelig god kundeservice! Er så tilfreds “
Cristine 5 stjerner
“Yderst hjælpsomme og vejledende”
Michael 5 stjerner
De ved rigtig meget om møbler
Kris 5 stjerner
Det var en meget behagelig samtale.
Käthe 5 stjerner
God kundebetjening og der blev svaret høfligt på mine spørgsmål.
Kaj 5 stjerner
Meget tilfreds. Utrolig venlig og hjælpsom betjening.
Steffen 5 stjerner
Super dejlig service af Rasmus. Kanon med en medarbejder der ved hvad han snakker om og kan vejlede os kunder
Anonym 5 stjerner
Tjekker lige varer på lager med det samme
Laila 5 stjerner
Virkelig god kundeservice! Er så tilfreds
Cristine 5 stjerner

Bliv ringet op

Ring til os på tlf. 20 28 02 74 eller notér dit nummer nedenfor, så kontakter vi dig.

"*" indikerer påkrævede felter

Dette felt er til validering og bør ikke ændres.